Domov / Projekti / Zaščita pred hrupom / Aktivna protihrupna zaščita na AC A1, odseka Celje Dramlje in Celje Arja vas

Aktivna protihrupna zaščita na AC A1, odseka Celje Dramlje in Celje Arja vas

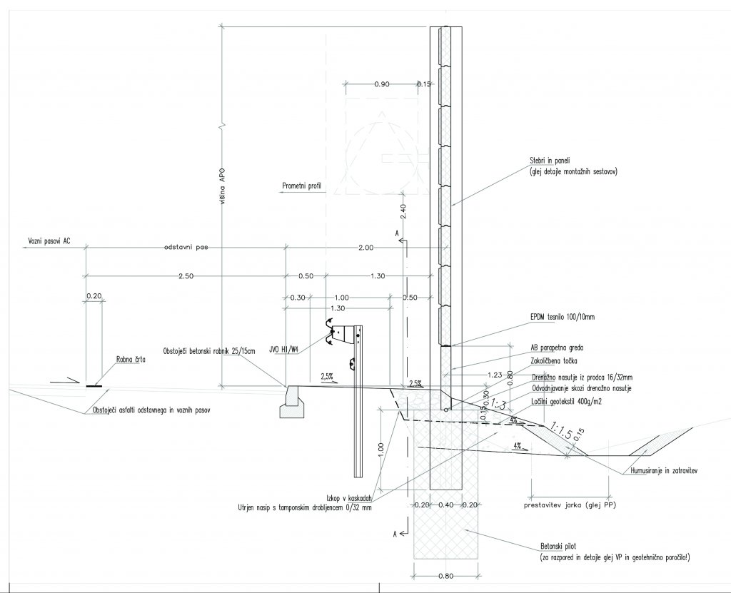
Na območju AC A1, odsek 0039/0639 Dramlje - Celje je potrebno izvesti protihrupne ukrepe skladno s prioritetnim načrtom reševanja avtocestnih odsekov v Republiki Sloveniji, kjer je nivo hrupa presežen in je s hrupom prizadeto večje število prebivalcev.